Estufa Vega Lux Harvia
La estufa eléctrica Vega Lux Harvia es el modelo de lujo de la familia de estufas eléctricas para saunas de Harvia. Un modelo Premium con una carcasa de acero inoxidable y revestimiento frontal de alta calidad en tonalidad negra que le confiere una estética de gran elegancia.
 
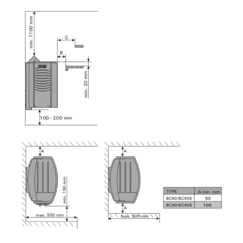
Su diseño moderno permite colocarla en la parte baja de la pared de la sauna y conseguir una emanación uniforme del calor desprendido. La estufa Vega Lux posee un proceso de instalación realmente sencillo. Con montaje mural.
Su uso también le resultará muy fácil, puesto que incluye una unidad de control integrada en la propia estructura de acero y está equipada con mandos ergonómicos
Tiene una capacidad máxima de almacenamiento de hasta 25 Kg de piedras.

Tabla comparativa de los modelos de estufa Harvia Vega Lux
La estufa Vega Lux de Harvia está disponible en 3 modelos distintos de potencia, todos ellos con el mismo diseño sofisticado y misma capacidad de piedras. Todos ellos son aptos para un sistema eléctrico monofásico o trifásico.
| Vega Lux 4,5 Kw | Vega Lux 6 Kw | Vega Lux 8 Kw | |
| Referencia | BX45 | BX60 | BX80 |
| Potencia | 4,5 Kw | 6 Kw | 8 Kw |
| Volumen recomendado (mín-máx) | 3-6 m³ | 5-8 m³ | 7-12 m³ |
| Alimentación | 230 V 1 N~/400 V 3 N~ | ||
| Dimensiones | 500 x 340 x 510 mm | ||
| Peso (sin piedras) | 11 Kg | ||
| Capacidad máxima | 25 Kg | ||
| Montaje | Mural | ||
| Unidad de control | Integrada en la estructura | ||











Valoraciones
No hay valoraciones aún.